EGER PRÍMA
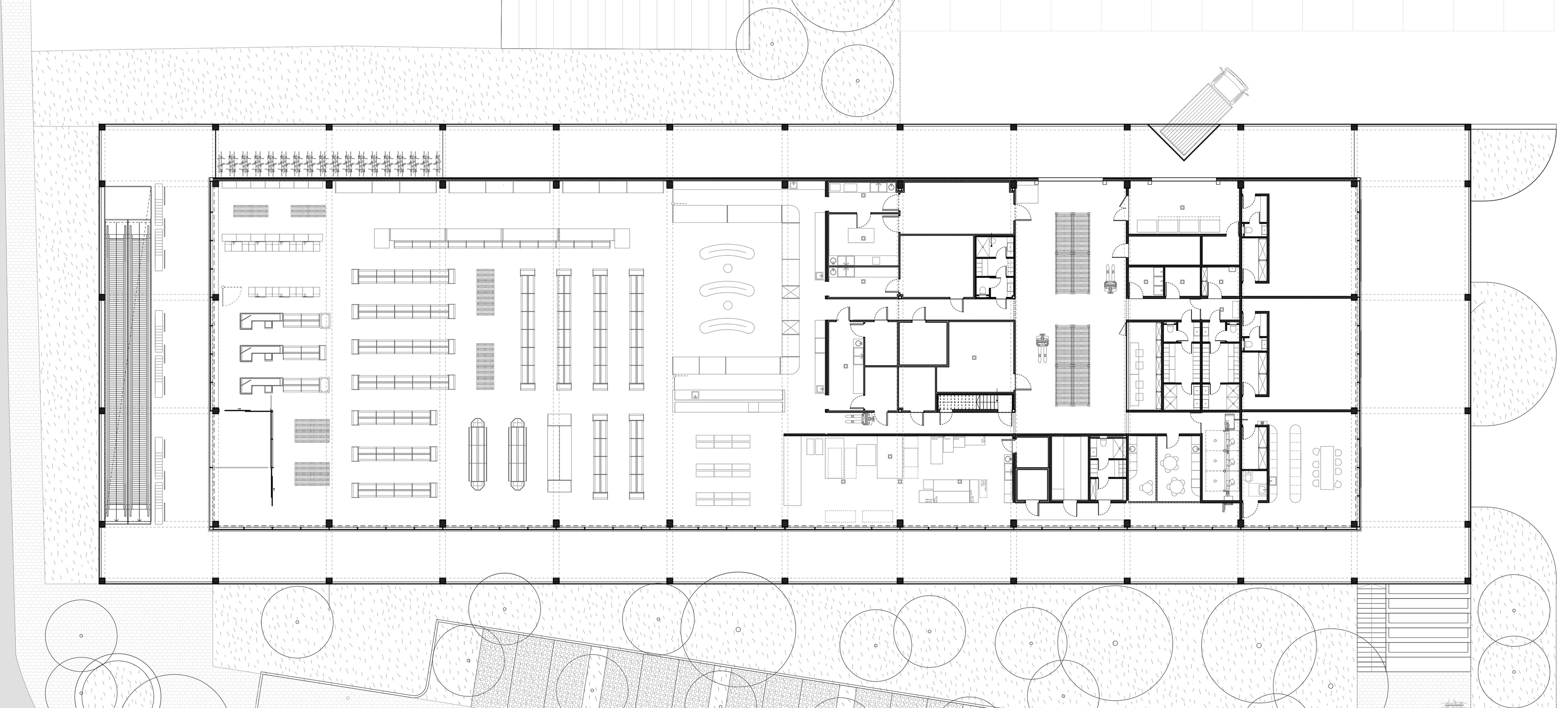
Eger vasútállomása mellett található kereskedelmi épület, mely telepítésében egy későbbi ütemben megvalósuló intermodális csomóponthoz igazodik. A fő üzlettér egy előregyártott csarnokszerkezetben kapott helyet, melyet körbe elegáns árkád szegélyez, alul pedig egy racionálisan szerkesztett 120 állásos parkolószint egészít ki.

Helyszín: Eger
Tervezés: 2023-25
Státusz: Kivitelezés alatt
Építészet: Arkt Építész Stúdió, Fajcsák Dénes, Fábián Gábor DLA, Karlovecz Ádám
Építész munkatárs: Molnár Csenge Virág
Fotók: Fajcsák Dénes, Fülöp Tamás