ÉPÍTÉSZET LIGETE
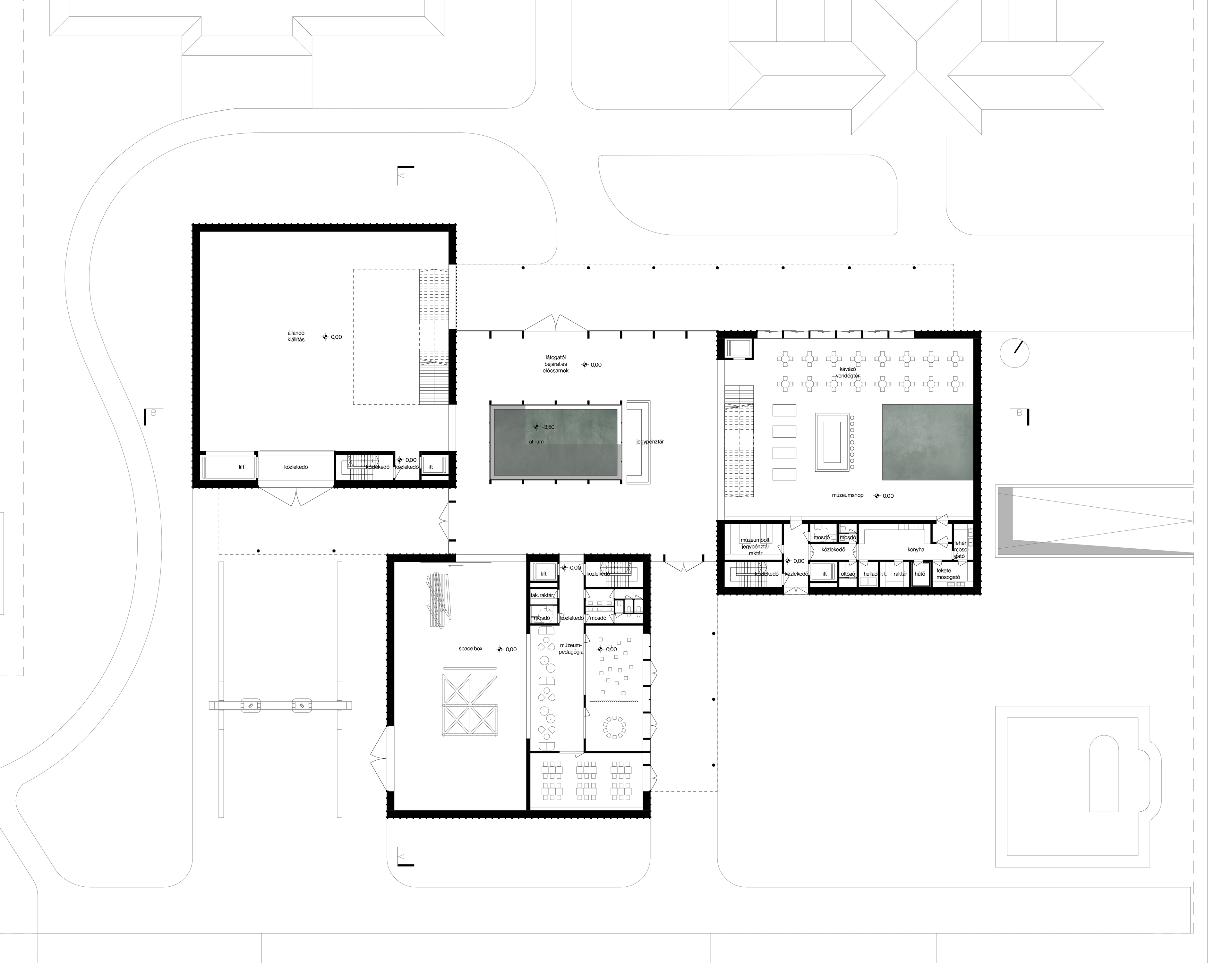
Megszólítás. Tapasztalás. Befogadás. – Fiatal építészek legmagasabb díjazású terve az eredménytelennek nyilvánított Építészeti Múzeum és Műemlékvédelmi Dokumentációs Központ új épületére kiírt pályázatán, melyre 36 pályamű érkezett. "A funkcionalitás, az elrendezés, az üzemeltethetőség szempontjából egyértelműen a legjobban megoldott pályamunka" – írja a zárójelentés.

Helyszín: Budapest
Tervezés: 2021
Státusz: Országos tervpályázat, legmagasabb díjazás
Építészet: Untitled_01, Balázs Anna, Balázs Bálint, Dongó Tamás, Karlovecz Ádám, Molnár Zsanett, Nagy Júlia, Nácsa Dóra, Novák-Mester Petra, Rakusz Liza Natasa, Suri Bálint
Építész konzulens: Balázs Tibor, Fábián Gábor DLA
Tájépítészet: Bajzáth Noémi, Pór Kata
Épületgépészet: Csapó Dániel
Grafika: Tóth Teodóra
Látványtervezés: Arató Miklós, Koch Balázs
Fenntarthatósági tanácsadó: Bakos Bálint