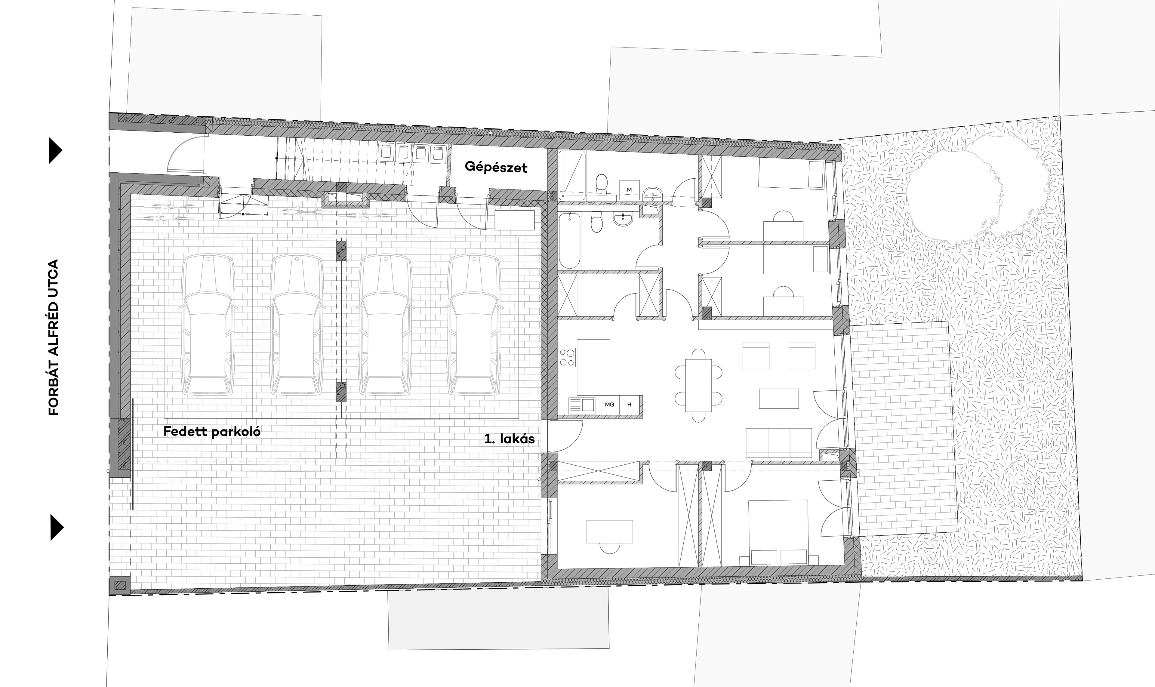
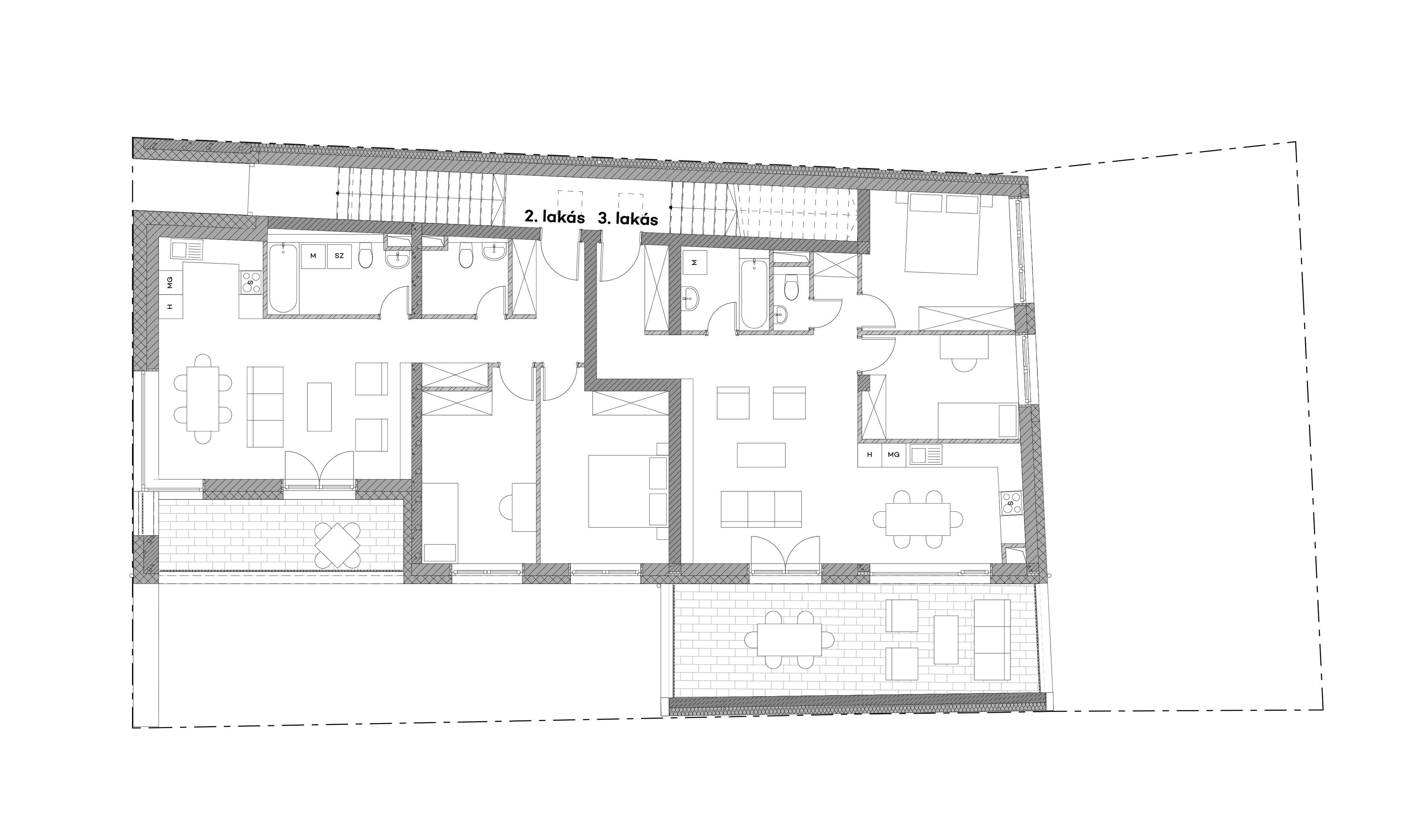
FORBÁT ALFRÉD UTCAI TÁRSASHÁZ
Négylakásos társasház Pécs egyik legromantikusabb városrészében, a Szigeti-külvárosi Forbát Alfréd utcában. A történelmi városmagból kiszorult egykori szegénynegyed heterogén beépítéssel és mozgalmas tetőtájjal bír, melyre kompakt tömeggel, "U" alakú nyeregtetővel és nyugodt homlokzatképzéssel reagáltunk. 

Helyszín: Pécs
Tervezés: 2025
Státusz: Kivitelezés alatt
Építészet: Balázs Anna, Karlovecz Ádám
Építész munkatárs: Göde-Tóth Orsolya